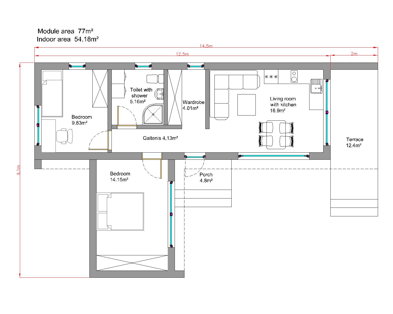
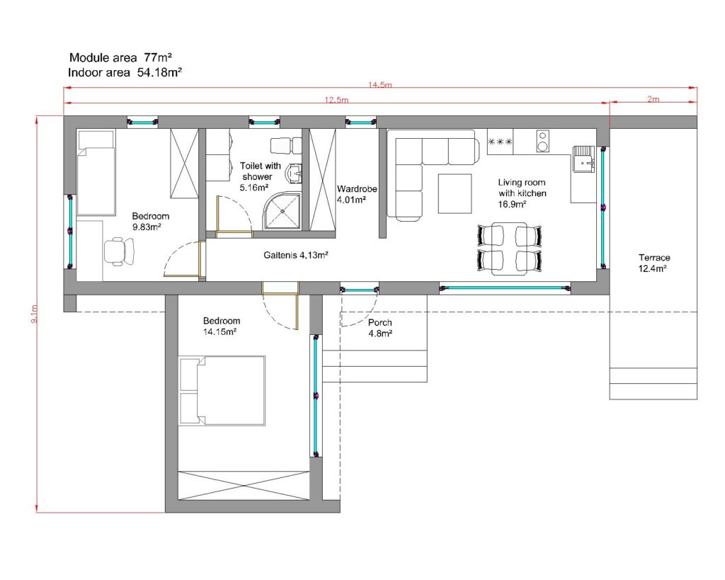
PROJECT DESCRIPTION
The biggest advantage of our residential modules is their energy efficiency and mobility, they can be moved several times.
The module structures have special lifting fasteners and fasteners to secure the module on a truck trailer.
Therefore, if necessary, you can sell or move your module to another location.
- Choose one of the module floor plan that like you best.
- Existing plans can be modified to meet the needs of the customer.
- As well as the possibility of developing an individual project and planning in accordance with the customer’s wishes.
All-season residential modular house price, without interior decoration, starting from EUR 600/sq.m. (module area)
Included in price:
- Module structures with thermal insulation;
- Roofing;
- Windows and exterior doors;
- Facade decoration;
Price for interior decoration and engineering communications starting from EUR 350/sq.m. (module area)
- Delivery and foundation construction costs are not included in the price; they are calculated based on the location of the building plot.
- Prices are indicative, the estimate is specified when placing an order.
- It is possible to order the module with or without interior decoration;
- More detailed information about the construction costs (estimate) of the building is available upon request.
Modular design solution:
- This is an energy-efficient modular building, suitable for living both in winter and summer.
- The building is structurally designed so that it can be transported and lifted by crane with partial or full finishing.
- This type of house is placed on columnar (steel screw piles, concrete piles, columnar concrete) foundation.
- Learn more about thermal insulation and structures –STRUCTURAL_COMPOSITION_pjk
To place an order or find out more information about the issues you are interested in, please contact us by e-mail: info@woodpanelhouses.eu or phone +371-29645979.









